Inwentaryzacja 3D budynków – dokumentacja architektoniczna, rzuty 2D i modele BIM

Inwentaryzacja 3D to proces tworzenia cyfrowego bliźniaka budynku, obiektu lub instalacji, którego efektem jest chmura punktów, model 3D lub cyfrowa dokumentacja. Wykorzystuje się ją do precyzyjnego odwzorowania stanu rzeczywistego na potrzeby dalszych prac projektowych lub do archiwizacji. Wykonuje się ją najczęściej za pomocą skanerów laserowych lub aparatów fotograficznych. W przypadku aparatów mówimy o fotogrametrii. Zdecydowanie szybszą metodą jest jednak pozyskanie danych za pomocą skanera laserowego 3D, ale tutaj szybkość jest zależna od modelu. Obie metody są precyzyjne natomiast dodatkowym atutem fotogrametrii jest bez wątpienia możliwość pozyskania wysokiej jakości tekstury – czyli obrazowo przedstawiając warstwy zewnętrznej modeli 3D w postaci obrazów (zdjęć). Istnieją skanery 3D wyposażone w aparat umożliwiający pozyskanie tekstury, więc wybór metody będzie podyktowany tym jaki efekt końcowy chcemy osiągnąć, jakim kosztem i w jakim czasie. Podstawowym produktem procesu digitalizacji cyfrowej jest chmura punktów, która stanowi podstawę do dalszej obróbki lub sama w sobie jest produktem finalnym.
Inwentaryzacje 3D – jak to zrobić precyzyjnie i szybko?
Aby dostarczyć bezbłędną dokumentację, musimy wyeliminować czynnik ludzki przy pobieraniu wymiarów. Dlatego w B3D odeszliśmy od tradycyjnych metod na rzecz cyfryzacji. Jak to wygląda w praktyce?
1. Tradycyjne pomiary ręczne (Metoda Inwazyjna)
Dalmierz, taśma i szkicownik to wciąż codzienność wielu biur projektowych. Niestety, ta metoda obarczona jest tzw. „błędem grubym” oraz ryzykiem pominięcia kluczowych wymiarów, co wiąże się z koniecznością powrotu na obiekt. Pomiary ręczne są czasochłonne i nie dają pełnego obrazu krzywizn czy deformacji ścian.
2. Skanowanie Laserowe 3D (Nasz Standard)
To obecnie najszybsza i najdokładniejsza metoda inwentaryzacji budowlanej. Korzystamy z nowoczesnych skanerów (np. Leica RTC360), które wykonują dwie czynności jednocześnie:
- Pomiar geometrii: Laser rejestruje miliony punktów z dokładnością do 2 mm.
- Rejestracja koloru (HDR): Wbudowane kamery wykonują zdjęcia sferyczne w technologii HDR. Dzięki temu otrzymujesz nie tylko wymiary, ale fotorealistyczną chmurę punktów. Pozwala to na swobodne „chodzenie” po wirtualnym budynku i sprawdzanie detali (np. rodzaju osprzętu elektrycznego czy pęknięć tynku) bez konieczności wizyty lokalnej.
3. Fotogrametria z drona (Tylko jako uzupełnienie)
W przeciwieństwie do firm opierających się wyłącznie na „dronowaniu”, my traktujemy fotogrametrię jako uzupełnienie skanera. Dron jest niezastąpiony przy inwentaryzacji dachu i miejsc niedostępnych z ziemi, jednak to skaner laserowy gwarantuje bezkonkurencyjną szybkość pozyskania danych we wnętrzach i precyzję niezbędną do projektów inżynierskich.
Wybór metody inwentaryzacji zależy bezpośrednio od tego, jaki produkt finalny jest Ci potrzebny: czy są to techniczne rzuty konstrukcyjne, czy fotorealistyczny model elewacji zabytku. W B3D łączymy dwie wiodące technologie, aby dostarczyć kompletną dokumentację architektoniczną.
Inwentaryzacja laserowa: jakim skanerem 3D pracujemy?

Świadcząc profesjonalne usługi inwentaryzacji, nie uznajemy kompromisów. Postawiliśmy na technologię, która łączy szybkość z najwyższą dokładnością, aby dostarczyć Ci pewny materiał wyjściowy.
Dlaczego to ważne dla Ciebie? Nasza inwentaryzacja laserowa opiera się na flagowym modelu Leica RTC360. W porównaniu do wielu popularnych na rynku urządzeń (jak starsze generacje Faro Focus), nasz skaner do inwentaryzacji budynków pracuje 3 razy szybciej. Dla Ciebie oznacza to krótszy czas naszej obecności na Twoim obiekcie (mniejsze zakłócenia w pracy zakładu lub biura) oraz błyskawiczne dostarczenie danych, przy zachowaniu wyjątkowej precyzji rzędu 1 mm.
W B3D elastycznie dopasowujemy się do Twojego projektu. Możesz zamówić u nas każdy etap procesu inwentaryzacji: od samego skanowania laserowego, poprzez rejestrację i czyszczenie chmury punktów (usuwanie szumów i artefaktów), aż po finalną, gotową inwentaryzację architektoniczną w postaci kompletnej dokumentacji CAD lub modelu BIM.



Skontaktuj się z nami i zamów wycenę inwentaryzacji budowlanej:
Telefon: +48 793 323 234
Napisz maila:
Zasięg usługi: Cała Polska (Warszawa, Poznań, Wrocław, Gdańsk, Lublin i inne)
💡 Szukasz surowych danych pomiarowych (Chmura Punktów)?
Jesteś geodetą lub inżynierem i interesuje Cię sama usługa skanowania bez opracowania dokumentacji CAD/BIM? Sprawdź nasze zaplecze technologiczne i ofertę dla specjalistów.
Efekt inwentaryzacji 3D – jaki produkt otrzymuje klient?
Podstawowym celem inwentaryzacji w B3D nie jest samo dostarczenie danych, lecz przygotowanie ustandaryzowanego podkładu pod Twój projekt. Niezależnie od tego, czy pracujesz nad adaptacją wnętrz, przebudową instalacji czy rewitalizacją zabytku – dostarczamy dokumentację opracowaną przez inżynierów, gotową do dalszej edycji.
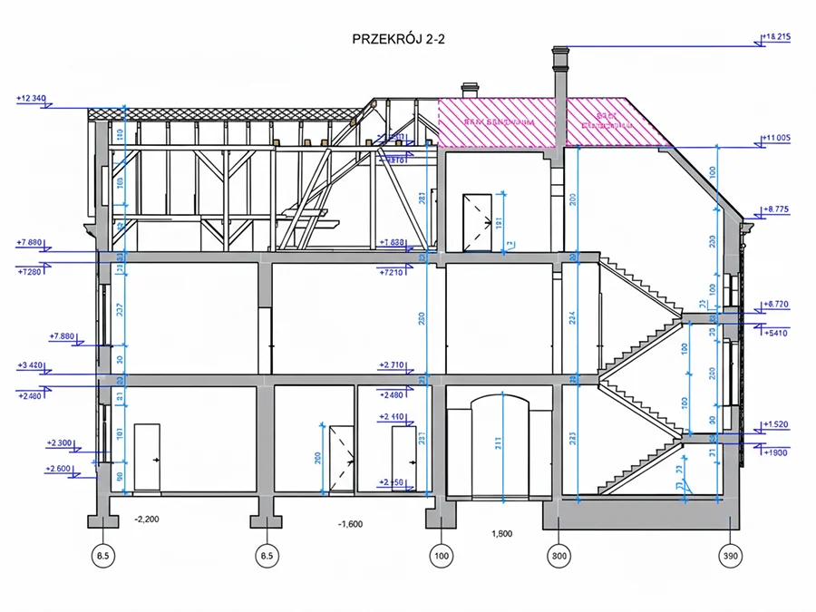
Dokumentacja CAD 2D (Rzuty i Przekroje) To standard w naszej współpracy z pracowniami architektonicznymi. Otrzymujesz klasyczną, wektorową dokumentację płaską, opracowaną na podstawie skanu laserowego.

- Co zawiera: Rzuty kondygnacji, rzuty więźby dachowej, przekroje poprzeczne i podłużne, rysunki elewacji z detalami.
- Standard: Pliki są oczyszczone, posiadają uporządkowane warstwy, style linii i wymiarowanie zgodne ze sztuką budowlaną.
- Formaty: .DWG, .DXF, .PDF.
Inteligentne Modele 3D (BIM / Cyfrowy Bliźniak) Wchodzimy na wyższy poziom projektowania. Na bazie chmury punktów budujemy parametryczny model 3D budynku (Digital Twin).

- Korzyści: Praca na modelu BIM pozwala wykryć kolizje (np. instalacji z konstrukcją) już na etapie inwentaryzacji. Otrzymujesz gotową bryłę, w której ściany, stropy i belki są obiektami posiadającymi swoje właściwości.
- Formaty: .RVT (Revit), .PLN (ArchiCAD), .IFC (uniwersalny standard BIM).
Chmura Punktów i WebShare (Weryfikacja) Traktujemy to jako wartość dodaną dla projektanta. Oprócz rysunków CAD, udostępniamy Ci efekt skanowania w formie „wirtualnego spaceru” w przeglądarce internetowej.

- Kolorową chmurę punktów (RGB) wraz z bezpłatną przeglądarką (WebShare), umożliwiającą wirtualny spacer po obiekcie i wykonywanie szybkich pomiarów w przeglądarce.
- Pełną kompatybilność. Pliki są dostarczane w formacie: LAS, PTG, PTS, PTX, RCP, XYZ, E57, LGS lub SPW. Dzięki temu masz pewność, że dane otworzą się w Twoim oprogramowaniu (AutoCAD, Revit, Archicad, SketchUp i inne)
Od chmury punktów do BIM: Modele parametryczne i Digital Twin
Kolejnym etapem wykorzystania chmury punktów jest budowa zaawansowanych modeli geometrycznych. W B3D nie ograniczamy się do prostych brył. Tworzymy precyzyjne modele 3D, które idealnie odzwierciedlają stan rzeczywisty obiektu pod kątem wymiarów, skali, kątów i rzeczywistych przesunięć ścian czy instalacji.

Modele parametryczne dla architektów (BIM).
Dla biur projektowych zamieniamy surowy skan w inteligentny model. Otrzymujesz obiekt o właściwościach parametrycznych – co to oznacza? Że każdy element modelu (okno, strop, belka) posiada zdefiniowane parametry techniczne. Taki model służy jako baza do projektów przebudowy, inwentaryzacji architektonicznej oraz zarządzania budynkiem.
Case Study: Cyfrowy Bliźniak (VR) dla przemysłu
Dowodem naszych kompetencji w modelowaniu jest realizacja gigantycznego projektu odwzorowania stacji transformatorowej (GPZ) na potrzeby szkoleniowe w Wirtualnej Rzeczywistości (VR).
- Zadanie: Stworzenie modelu, który posłuży do kontroli jakości i szkoleń BHP.
- Efekt: Model powstały na bazie chmury punktów charakteryzuje się milimetrową precyzją. Taki obiekt może posłużyć nie tylko do gier czy VR, ale przede wszystkim do kontroli stanu rzeczywistego skomplikowanych instalacji przemysłowych.
Dostępne formaty wymiany danych: Dostarczamy modele 3D dostosowane do Twojego oprogramowania inżynierskiego lub graficznego:Design i VR: .3DM (Rhino), .OBJ, .FBXInżynieria i Architektura: .DWG, .STP (STEP), .RVT (Revit), .IFC
Dlaczego warto zlecić nam inwentaryzację budowlaną?
Działamy na rynku od momentu, gdy skanowanie laserowe zaczęło wchodzić do polskiego budownictwa. Nie jesteśmy tylko „firmą od pomiarów” – jesteśmy partnerem technologicznym, który rozumie proces projektowy i specyfikę pracy architekta.
Co zyskujesz współpracując z B3D?
Elastyczność Skali: Codziennie realizujemy zlecenia o różnej wielkości. Z tą samą starannością wykonamy inwentaryzację kawalerki na potrzeby projektu wnętrz, jak i kompleksowy skan wielkopowierzchniowej hali przemysłowej czy zabytkowej katedry.
Własny Park Maszynowy (Bez pośredników): Posiadamy własny, precyzyjny skaner do inwentaryzacji (Leica RTC360), co gwarantuje Ci dostępność terminów i szybkość działania. Nie wypożyczamy sprzętu – my na nim pracujemy każdego dnia, znając jego możliwości do ostatniego milimetra.
Wsparcie Inżynierskie: Nie zostawiamy Cię samego z plikiem. Oferujemy pełną obróbkę materiału: od czyszczenia chmury punktów z „szumów” (ludzie, samochody), po tworzenie zaawansowanych modeli 3D i aplikacji VR. Doradzamy, jak optymalnie wykorzystać te dane w Twoim oprogramowaniu.
Zastosowanie inwentaryzacji 3D – pytania i odpowiedzi
Sprawdź, w jakich obszarach inżynierii i architektury nasza dokumentacja sprawdza się najlepiej.
Jest to podstawa do prac konserwatorskich. Tworzymy inwentaryzację cyfrową zabytków, która precyzyjnie odwzorowuje geometrię sklepień, gzymsów i detali sztukatorskich – elementów niemożliwych do zmierzenia taśmą. Dostarczamy rzuty elewacji (ortofotoplany) niezbędne do uzyskania pozwoleń konserwatorskich. Dodatkowo, surowa chmura punktów może posłużyć do stworzenia wirtualnego spaceru (np. po podziemiach) w celach edukacyjnych i promocyjnych.
Tak, to nasza główna specjalizacja. Inwentaryzacja architektoniczna 3D jest kluczowa przy adaptacji starych fabryk („Lofty”), kamienic czy magazynów na biura lub mieszkania. Nasza dokumentacja pozwala na precyzyjne wyliczenie powierzchni najmu (BOMA) oraz weryfikację krzywizn ścian przed montażem nowej aranżacji wnętrz. Wykonujemy także inwentaryzacje przed rozbiórką, zachowując „cyfrowego bliźniaka” wyburzanego obiektu.
Dostarczamy precyzyjne dane o stanie technicznym mostów, wiaduktów, dróg oraz sieci energetycznych. Skanowanie laserowe pozwala monitorować ugięcia i deformacje konstrukcji bez konieczności długotrwałego wyłączania obiektu z ruchu. Inwentaryzacja 3D infrastruktury telekomunikacyjnej i energetycznej ułatwia planowanie modernizacji oraz usuwanie kolizji w gruncie.
Zdecydowanie tak. To idealne narzędzie dla logistyki i Facility Managementu. Zbudowanie wirtualnego modelu hali w standardzie BIM pozwala sprawdzić, czy nowy system regałowy zmieści się w istniejącej przestrzeni. Inwentaryzacja 3D magazynów umożliwia dokonanie wszystkich niezbędnych obliczeń kubaturowych i symulacji procesowych bez zatrzymywania pracy zakładu.
